“Lunedì ci era stato riferito che l’ospedale in Fiera a Bari sarebbe stato aperto al massimo venerdì, cioè ieri, ma purtroppo non è accaduto. E questo ennesimo ritardo pesa sulla situazione di Brindisi, chiamata a sopperire alle carenze di Bari e Taranto per 18 ricoveri negli ultimi giorni”. Lo dichiara il presidente della commissione regionale […]
È partito il 25 aprile del 2019 da Trieste e percorre l’Italia a piedi per scoprirne i suoi borghi più belli e portare il suo messaggio di solidarietà: quello della sensibilizzazione alla tematica delle malattie rare, come la sclerosi tuberosa e la ricerca per nuove cure. Così, Elio Brusamento, atletico alpino 69enne in pensione, è […]
Questa mattina il sindaco di Bari Antonio Decaro ha ricevuto a Palazzo di Città il primo Ministro della Repubblica d’Albania Edi Rama, accompagnato da una delegazione composta da quattro ministri e una rappresentanza del Parlamento. L’incontro, al quale hanno partecipato il prefetto di Bari Antonella Bellomo, il presidente della Regione Michele Emiliano e la presidente […]
È alla firma del sindaco di Bari Antonio Decaro l’ordinanza che ribadisce il divieto di consumazione di alimenti e bevande su suolo pubblico o aperto al pubblico già a decorrere dalle ore 18.00 e dispone, per questo weekend (6 e 7 marzo) e per il prossimo (13 e 14 marzo), il divieto di asporto di […]
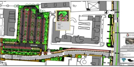
Entro la fine del mese di marzo saranno avviati i lavori per la riqualificazione dell’area parcheggio esistente in via Pietro Sette, nel quartiere San Pasquale. A renderlo noto è l’assessore ai Lavori pubblici Giuseppe Galasso. Rimarrà sostanzialmente immutata la capacità di parcheggio, pari a circa 200 posti auto, inclusi quelli riservati alle persone con disabilità e […]
“Oggi, con Amiu, abbiamo posizionato i primi 6 cestoni d’arredo sul lungomare di San Cataldo”. A scriverlo in un post pubblicato sui social è l’assessore all’Ambiente, Pietro Petruzzelli. Sul tratto, ripulito dal comitato dei residenti e da Retake qualche giorno fa, saranno posizionat in totale 300 cestoni, tutti dotati di porta cicche. “Saranno privilegiati – […]
Ancora un addio per la centralissima via Sparano di Bari e, ancora una volta, a chiudere è un punto vendita di un grande marchio. Si tratta di Hermès, brand di lusso da anni situato all’angolo con via Principe Amedeo e dove, da ieri, secondo quanto raccontato da Repubblica, le saracinesche sono già abbassate. All’interno solo […]
Il gup del Tribunale di Bari Rossana De Cristofaro ha condannato alla pena di 12 anni di reclusione il boss del quartiere San Paolo di Bari Andrea Montani, 58 anni, imputato per il tentato omicidio con l’aggravante mafiosa del pregiudicato 42enne Ignazio Gesuito, ferito in un agguato il 5 febbraio 2018 nel quartiere Cecilia di […]
Con l’arrivo della primavera, è già allarme processionaria a Bari. In particolare, al quartiere San Paolo, dove un residente ha scattato queste immagini che testimoniano la presenza copiosa di questo insetto, altamente distruttivo per le piante ma anche pericolose per la salute dell’uomo e degli animali domestici. Le fotografie scattate nelle scorse ore e pubblicate […]
C’è chi legittimamente si ferma a criticare o ripropone sui social network gli scatti del degrado, e chi invece decide di intervenire in prima persona per aiutare gli operatori Amiu a migliorare il decoro cittadino. A Bari negli ultima anni è in constante crescita il trend che vede i volontari ambientalisti organizzarsi sui social network […]
Una insegna storica rimessa a nuovo grazie all’intervento della tabaccheria e dei condomini del palazzo di via Andrea da Bari con angolo via Piccinni. Ne dà notizia la consigliera comunale Micaela Paparella. “Grazie a chi ha provveduto al recupero e provvederà al restauro dell’insegna emersa dal passato la cui storia è parte della nostra storia […]
Bari è prima al Sud ma terz’ultima in Italia per la spesa dedicata ai servizi all’infanzia, tra i Comuni con almeno 200mila residenti: è quanto riporta un’anticipazione del prossimo numero del ‘Rapporto Sud’ de Il Sole 24 Ore in edicola domani venerdì 5 marzo in Campania, Puglia, Basilicata, Calabria, Sicilia e Sardegna. Il quotidiano economico […]











